3190, 28 Kingsview Road SE Airdrie, Alberta T4A 3L7

6,235 sqft

$2,700,000

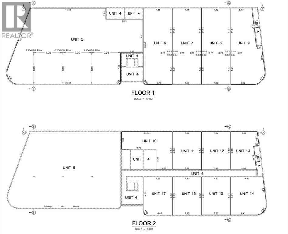
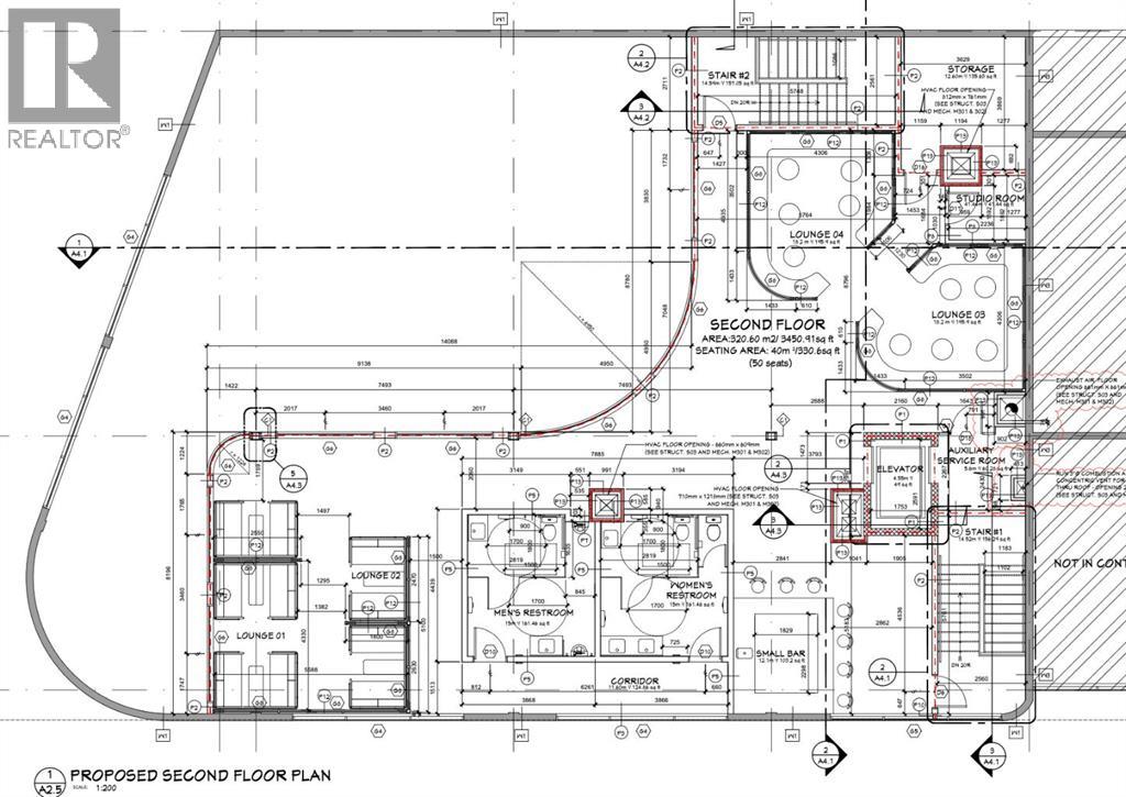
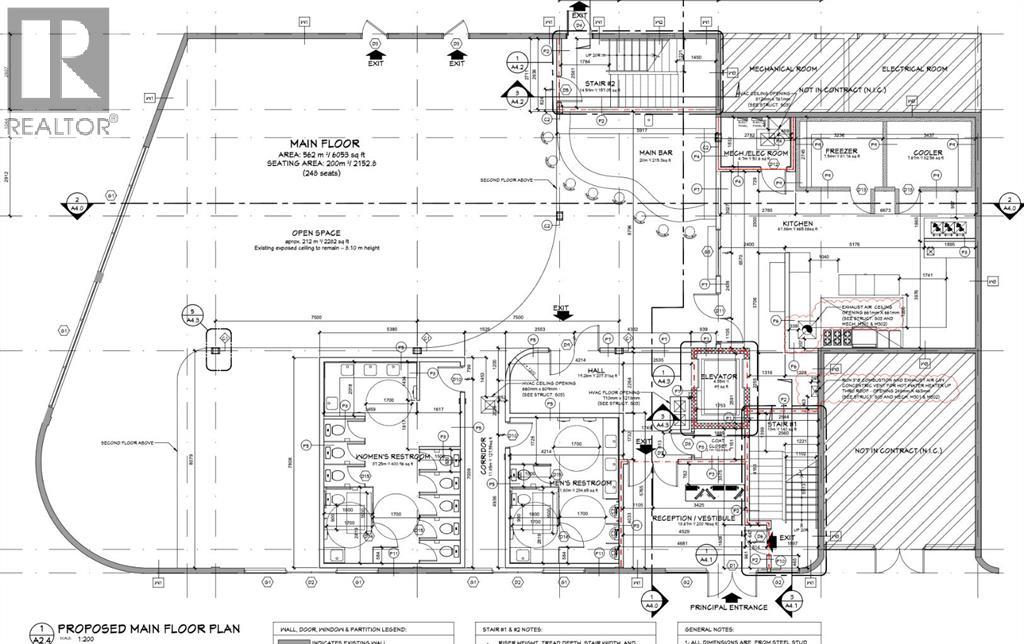
Rare opportunity to purchase a 6,235 sq. ft. shell condominium unit in a prime Airdrie location with excellent visibility from the QE2 and convenient access from Yankee Valley Blvd. This versatile commercial space offers ample parking, 24-foot ceiling height, and outstanding potential for a variety of permitted uses. A major feature of the property is the existing City approval for a second floor, allowing for expansion to approximately 10,000 sq. ft. The current owner also has approval in place for restaurant use, creating an excellent opportunity for hospitality, retail, office, or other commercial ventures. The generous ceiling height allows the option to add additional floor area or maintain an open-concept layout with the potential for impressive floor-to-ceiling glass.Zoned IB-1, this unit offers flexibility for a range of commercial and employment uses. A strong opportunity for owner-users, investors, or developers seeking exposure, accessibility, and future upside in one of Airdrie’s key commercial corridors. Electrical power is 400A, 208/120V, 3 Phase, 4 wire (TBV). Condominium parking area includes a ratio of 4.1 parking stalls per 1,000sf. (id:51540)

Property Details

MLS® Number A2299336
Property Type Retail
Community Name Kingsview Industrial Park
Plan 1911757

Building

Constructed Date 2019
Fire Protection Full Sprinkler System
Size Exterior 6235 Sqft
Size Interior 6,235 Sqft
Total Finished Area 6235 Sqft
Type Retail

Land

Acreage No
Size Total Text Unknown
Zoning Description 1b-1

https://www.realtor.ca/real-estate/29562481/3190-28-kingsview-road-se-airdrie-kingsview-industrial-park

Contact Us

Contact us for more information

Generating Captcha

Michelle Krebs
Associate

(403) 903-3085
(403) 271-5909

Cir Realty
130, 703 - 64 Avenue SE
Calgary, Alberta T2H 2C3

(403) 271-0600
(403) 271-5909

Tim Crough
Associate Broker

(403) 540-4102
(403) 271-5909
timcrough.ca/
www.linkedin.com/pub/tim-crough/b/835/69

Cir Realty
130, 703 - 64 Avenue SE
Calgary, Alberta T2H 2C3

(403) 271-0600
(403) 271-5909